In the heart of Fitzroy and within walking distance of the 11 and 86 trams, situated above our colourful Brunswick St store, our event space The Hive is available to hire.
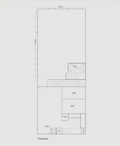
With enough room to comfortably suit 70 standing, or 40 seated guests; The Hive is perfect for creative workshops, corporate lunch and dinners, parties and all manner of creative events.
As a self-catering venue, The Hive offers complete flexibility with your choice of food and beverage service; from formal sit-down meals to cocktail-style events or casual grazing menus. Our team is happy to recommend trusted local caterers to help bring your vision to life.
Please note for events where alcohol is being served, you will need to apply for an event liquor licence which takes approximately 6 weeks. We’re also delighted to assist with floral design and styling to make your event truly special.
Please note that the space is accessible through the store, or a narrow side entrance and up a short flight of stairs. There is no wheelchair access to the upstairs space.
The venue echoes with the bustle of the store, which adds to the charm and ambience but can make it unsuitable for events where privacy or quiet is required.
Fill out our Contact Form or call our friendly team on 9419 4988 to discuss your next event at The Hive.
Facilities
- 2 Bathrooms
- Air-Conditioning
- Bluetooth Speaker
